Mẫu nhà ống 2 tầng hiện đại kèm bản vẽ được ưa chuộng nhất 2022.
Dưới đây là mẫu nhà ống 2 tầng được thiết kế theo phong cách hiện đại, bố trí khoa học và phối cảnh mặt tiền vô cùng độc đáo với mức chi phí đầu tư vô cùng hợp lí mọi người cùng xem và tham khảo.
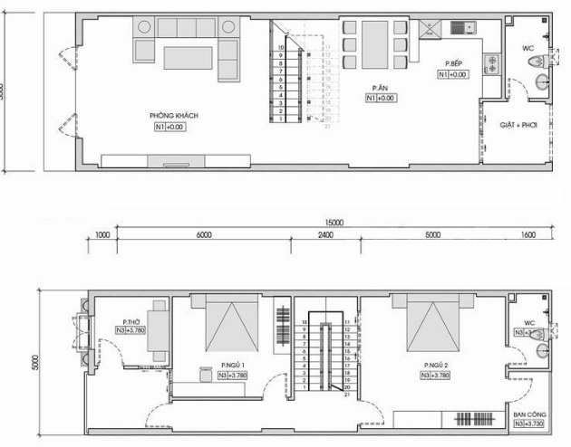
1: Mẫu nhà ống 2 tầng mặt tiền 4m.

Trên mặt tiền ngôi nhà 4m đây là mẫu nhà 2 tầng được xây dựng với chiều sâu và dài của ngôi nhà là 15m. Ngôi nhà có mặt tiền vô cùng thông thoáng và rộng rãi vì nằm trên trục đường lớn các bố cục chính của ngôi nhà được sắp xếp và xử lí đơn giản. Hệ cửa của ngôi nhà được thiết kế để đón ánh nắng giúp cho ngôi nhà trở nên tươi sáng.
Tầng 1: Phòng khách được bố trí ngay cửa đi vào, cầu thang thông tầng được bố trí chính giữa ngôi nhà với công dụng vừa làm vách ngăn giữa phòng khách và phòng bếp, nhà vệ sinh và khu phơi đồ được thiết kế sau cùng ngôi nhà để đảm bảo vệ sinh và tính thẩm mỹ và thuận tiện.

Tầng 2 phòng thờ được đặt phí trước còn phía sau là 2 phòng ngủ của các con thiết kế bên cạnh thang bộ đi lên. Cuối hành lang là nhà vệ sinh khép kín và một ban công phụ vô cùng hợp lí.
2: Mẫu nhà ống 2 tầng đẹp giá rẻ.
Mẫu nhà 2 tầng được xây dựng trên mảnh đất có diện tích 4,5 x 15m bao gồm 3 phòng ngủ ngôi nhà được thiết kế với lối kiến trúc hiện đại nhưng đơn giản, với công năng của ngôi nhà đơn giản việc thi công diễn ra nhanh chóng và không tốn quá nhiều chi phí xây dựng.

Tầng 1: Gồm khu để xe phía trước nhà, phòng khách được bố trí phía sau cửa chính tiếp đến là phòng ăn phòng bếp và phòng vệ sinh chung ở cuối ngôi nhà.

Tầng 2: Gồm 2 phòng ngủ và 2 nhà vệ sinh khép kín, một sân phơi đồ và một ban công lớn.

3: Bản vẽ nhà ống 2 tầng 5 x 16m.

Tầng 1: Bao gồm phòng khách, phòng sinh hoạt chung, 1 phòng ngủ, bếp ăn và 1 nhà vệ sinh chung.
Tầng 2: Gồm ban công lớn 2 phòng ngủ sân phơi được bố trí cuối ngôi nhà cùng nhà vệ sinh vô cùng hợp lí.
4: Bản vẽ nhà ống 2 tầng 5 x 15m.

Tầng 1: Bao gồm phòng khách, một nhà vệ sinh chung được đặt bên dưới cầu thang giúp tối ưu diện tích sử dụng đi và bên trong là phòng bếp và 1 phòng ngủ được thiết kế phía cuối ngôi nhà.
Tầng 2: Gồm 1 sân phơi, 2 phòng ngủ, 1 nhà vệ sinh chung và 1 phòng thờ.
5: Bản vẽ nhà ống 5,6 x 12m.

Tầng 1: Gồm 1 nhà để xe cạnh phòng khách, 1 nhà vệ sinh chung bên dưới cầu thang giếng trời để lấy ánh sáng và phòng bếp.
Tầng 2: Gồm 2 phòng ngủ của bố mẹ và con một ban công nhỏ một giếng trời và 2 nhà vệ sinh khép kín.
6: Bản vẽ nhà ống 2 tầng 4,8 x 16m.

Dưới đây là bài viết được nhiều người xem bấm vào link phía dưới để xem thêm.
Mẫu nhà đẹp 2 tầng 1 tum hiện đại mới nhất 2022.
Mẫu nhà đẹp 2 tầng mái thái hình chữ L.
Mẫu nhà đẹp 3 tầng mới nhất 2022
Mẫu nhà đẹp 2 tầng mái lệch mới nhất 2022.
Mẫu nhà 2 tầng được bình chọn đẹp nhất 2022.
Nhà ống 2 tầng cập nhật những mẫu nhà được yêu thích nhất 2022.
